Urgent Warning from UK Intelligence: China's 'Super-Embassy' in London Sparks Espionage Fears Amid Leaked Documents
A chilling warning has emerged from the UK's intelligence community as details of China's proposed 'super-embassy' in London are laid bare.
Professor Anthony Glees, a leading expert in intelligence and security at the University of Buckingham, has raised alarm over the potential for espionage, claiming the facility could become a hub for Chinese surveillance across Europe.
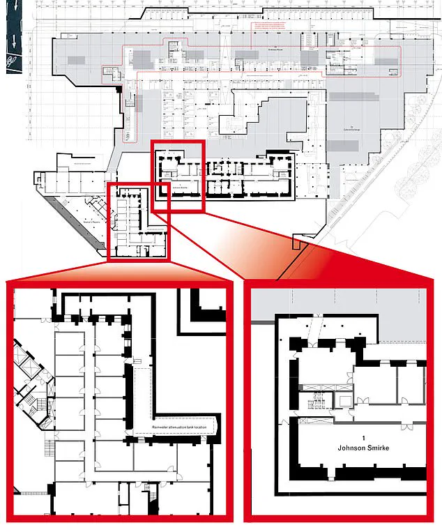
His concerns are based on unredacted planning documents leaked last night, revealing a secret chamber located in the north-west corner of the embassy complex—just metres from a critical fibre-optic cable network that carries financial data between the City of London and Canary Wharf.
This proximity, Glees argues, would make the cables vulnerable to tampering, enabling China to intercept sensitive communications with alarming ease.
The leaked plans show a triangular room measuring up to 40 metres in length and 2-3 metres in depth, strategically positioned to exploit the vulnerabilities of the nearby infrastructure.
Professor Glees emphasized that the room's design, including heating systems capable of supporting large servers, suggests it could serve as a nerve centre for espionage operations. 'This is not just about spying on the UK,' he warned on LBC's Breakfast programme. 'This would be the Chinese intelligence hub for the whole of Europe.' His remarks come amid growing fears that the embassy's size and capabilities could also be used to intimidate critics of the Chinese government, echoing a 2022 incident where a Hong Kong democracy protester was assaulted inside the Chinese consulate in Manchester.
The controversy has drawn the attention of a group of Labour MPs, who have urged Prime Minister Keir Starmer to reject the embassy plans.
In a letter to Communities Secretary Steve Reed, the MPs highlighted the risks posed by the proposed facility, citing China's history of espionage, interference in UK affairs, and the issuance of bounties against Hong Kongers living in Britain.
They also warned that the embassy's location above vital infrastructure could exacerbate threats to the UK's economic and national security.

Sarah Champion, a Labour MP and member of the Joint Committee on the National Security Strategy, described the concerns as 'significant and unresolved,' adding that the government must not overlook the potential for the embassy to be used as a tool of intimidation against dissidents.
Despite these warnings, Downing Street has maintained that national security concerns have been 'considered and addressed' in the planning process.
A government spokesman reiterated that the decision on the embassy's development would be made by the Secretary of State for Housing, Communities and Local Government, with a final ruling expected by 20 January.
The official denied providing further details, citing the quasi-judicial nature of the process. 'National security is the first duty of any government,' the spokesman said, 'and it has been the core priority throughout this process.' As the debate intensifies, the leaked documents have reignited questions about the balance between diplomatic engagement and safeguarding the UK's critical infrastructure.
With the planning decision looming, the government faces mounting pressure to ensure that the new embassy does not become a gateway for espionage or a symbol of China's growing influence in Europe.
The coming days will be crucial in determining whether the UK can reconcile its diplomatic ties with China while protecting its national interests.
A secret network of 208 hidden rooms, many of which are concealed in planning documents, has been uncovered beneath the proposed 'super-embassy' site in London, according to a late-breaking report by The Telegraph.
The discovery has reignited fears that the sprawling diplomatic complex—set to be constructed on the former Royal Mint site, pending approval from Prime Minister Sir Keir Starmer—could house advanced surveillance equipment.

Key to these concerns is the presence of at least two air extraction systems, which experts suggest could be used to cool high-tech computing hardware, raising questions about the embassy's true purpose.
The revelation has triggered a fierce political backlash.
MPs from across the political spectrum, including both Conservative and Labour factions, have called for the government to reject China's application for the embassy, citing 'grave security risks.' The site's proximity to critical infrastructure in the City of London, including major financial institutions and data centers, has amplified these fears.
Critics argue that the proposed structure could serve as a covert hub for espionage, with some suggesting it may be used to intercept sensitive communications transmitted through underground fiber-optic cables running beneath Mansell Street.
Downing Street has reportedly urged the Prime Minister to approve the plans before his upcoming state visit to China, aiming to ease tensions with President Xi Jinping following a series of delays in the project.
However, this move has been met with sharp criticism.
Security expert Professor Alan Woodward has labeled the proximity of the embassy to the cables as a 'red flag,' warning that the location would be an 'enormous temptation' for China to conduct surveillance.

His concerns are echoed by diplomatic sources, who revealed that planning documents include a 'spy campus'—a facility designed to house over 200 intelligence officers on-site, further fueling speculation about the embassy's dual role as a diplomatic mission and a surveillance operation.
The controversy dates back to 2018, when China purchased the 215,280 sq ft site for £255 million from the Crown Estate.
From the outset, security experts raised alarms about the site's location, which lies mere meters from the financial heart of London.
The cables running through Mansell Street, owned by companies such as BT, Colt Technologies, and Verizon, are critical to global communications, linking the City of London and Canary Wharf to major data centers, including the London Stock Exchange.
The proximity of the proposed embassy to these lines has led to fears that China could exploit the infrastructure to tap into sensitive data.
Further fueling the controversy, The Mail on Sunday recently exposed details of 'spy dungeons'—two unlabelled basement rooms and a tunnel—whose purpose was redacted in planning documents.
These revelations have intensified concerns that the embassy could be used to track and apprehend dissidents, including those who have fled Hong Kong.

A leaked document also confirmed the existence of a 'spy campus,' which would provide on-site housing for intelligence operatives, suggesting a level of operational integration between the embassy and China's surveillance apparatus.
China has dismissed all allegations of espionage, with officials describing the claims as 'groundless and baseless.' BT, one of the companies whose cables run beneath the site, has stated that it employs 'robust security measures' and collaborates with the government to protect its infrastructure.
However, these assurances have done little to quell the growing unease among security experts and politicians.
Shadow Justice Secretary Robert Jenrick has called the unredacted plans 'shocking,' vowing that no one committed to national security could endorse the project.
As the debate over the embassy's future intensifies, the UK faces a stark choice: prioritize diplomatic relations with China or safeguard its critical infrastructure from potential surveillance threats.
With the Prime Minister's decision looming and the embassy's construction inching closer to reality, the stakes have never been higher.
The site's history as a symbol of British sovereignty—once home to the Royal Mint—adds a layer of symbolic tension to the dispute.
As the government weighs its options, the question remains: will London's financial heart become a battleground for espionage, or will the UK find a way to protect its interests without compromising its diplomatic ties with China?
Photos